Apartament 4 camere într-un imobil Art Deco pe Bulevardul Dacia / Parcul Ioanid – complet renovat în 2024

Bucuresti - Vezi pe hartă

460.000 €

Comision 0% cumpărător

Proprietar

0743011710

Contactează vânzătorul


Detalii


Situat la etajul 1 al unei clădiri interbelice cu doar doi proprietari, apartamentul îmbină eleganța originală a arhitecturii cu confortul unei renovări complete realizate în 2024.

Clădirea are regim redus de înălțime (D+P+2+M) și o atmosferă discretă și liniștită.

Renovarea a fost făcută cu atenție pentru detaliu și cu materiale de foarte bună calitate, urmărind să păstreze caracterul locuințelor interbelice. În lucrările de refacere au fost folosite materiale tradiționale pe bază de var, similare celor utilizate în construcția inițială, pentru a menține un climat interior sănătos și specificul original al apartamentului.

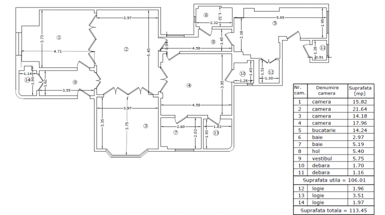
Apartamentul este organizat în living și trei dormitoare, două băi, bucătărie, vestibul și hol, precum și trei balcoane. Dispune de debara, cameră tehnică și două intrări – principală și de serviciu.

La demisol se află și o cameră renovata de aproximativ 12 mp, cu fereastră, încălzire și parchet, folosită în prezent pentru depozitare.

Confortul termic este asigurat de încălzire prin pardoseală TECE, împărțită în trei zone controlate prin aplicație mobilă, împreună cu centrală proprie Viessmann și contor de gaze separat. Fiecare dormitor este dotat cu aer condiționat cu inverter, marca GREE.

Bucătăria este complet echipată cu electrocasnice de calitate: mașină de spălat vase Miele, mașină de spălat rufe și uscător Whirlpool, tocător de resturi Franke, precum și cuptor, plită, hotă și cuptor cu microunde Franke. Blatul este realizat la comandă din Corian®.

Finisajele sunt alese într-o notă discretă și durabilă: parchet Iconic Wood, gresie și faianță Harmony Inspire, obiecte sanitare Grohe și TECEone, port-prosoape Radox în fiecare baie și prize și întrerupătoare Legrand.
Ușile interioare și ușile de acces sunt din lemn masiv – unele originale, restaurate cu grijă, iar celelalte realizate la comandă în același stil, pentru a păstra coerența arhitecturală a apartamentului. Ferestrele sunt completate de storuri exterioare și perdele realizate la comandă.

Un avantaj rar în această zonă este curtea pavată de peste 400 mp, aflată în folosința imobilului. Spațiul poate fi folosit atât pentru relaxare si joaca, cât și pentru parcare, fiind potrivit pentru mașini cu lățime de până la 2,05 m.

Imobilul nu are o expertiză oficială pentru încadrarea într-o clasă de risc seismic, însă există două expertize tehnice realizate de arhitecți, care confirmă starea bună a clădirii.

Apartamentul se vinde complet mobilat, pregătit pentru mutare imediată.

Vânzare direct de la proprietar, fără comision de agenție.

Caracteristici

Nr. camere: 4
Suprafaţă utilă: 106mp
Etaj: 1/2
Compartimentare: Decomandat
Confort: 1
Nr. Bai: 2
An Constructie: 1942

Hartă